小型系统主要采用AUTOTROL、FLECK公司的小型多路阀:255、168、255ES、268,2510、5000、5600、6700、8500。采用时间或流量控制器,构成单罐或双罐系统,配用250~400mm的树脂罐,进出水口1/2~1",单罐产水量0.5~4t/h,系统产水量0.5~6t/h。此类软水系统一般采用塑料盐箱、软盐水管,可选配有标准底座。
|
一、 |
ZK系列小型软化水系统规格表 |
|
型号 |
处理量 |
罐径 |
树脂 |
盐耗 |
外形尺寸(m) |
运行方式 |
|
ZK-03T |
0.2-0.5 |
Ф200 |
25 |
5 |
0.6×0.5×1.9 |
单罐时间控制含盐阀及出水口电磁阀 |
|
ZK-1T |
0.5-1.4 |
Ф250 |
50 |
7 |
0.8×0.5×1.9 |
|
|
ZK-2T |
1.6-2.2 |
Ф300 |
75 |
10 |
0.9×0.5×1.9 |
|
|
ZK-3T |
2.5-3.0 |
Ф350 |
100 |
15 |
1.0×0.5×1.9 |
|
|
ZK-4T |
3.2-4.5 |
Ф400 |
125 |
19 |
1.2×0.5×1.9 |
|
|
ZK-5T |
4.0-5.5 |
Ф500 |
150 |
25 |
1.2×0.5×1.9 |
|
|
ZK-03Q |
0.2-0.5 |
Ф200 |
25 |
5 |
0.6×0.5×1.9 |
单罐流量控制,含盐阀及出水口电磁阀剩余水量、瞬时流量、再生剩余时间显示 |
|
ZK-1Q |
0.5-1.4 |
Ф250 |
50 |
7 |
0.8×0.5×1.9 |
|
|
ZK-2Q |
1.6-2.2 |
Ф300 |
75 |
10 |
0.9×0.5×1.9 |
|
|
ZK-3Q |
2.5-3.0 |
Ф350 |
100 |
15 |
1.0×0.5×1.9 |
|
|
ZK-4Q |
3.2-4.5 |
Ф400 |
125 |
19 |
1.2×0.5×1.9 |
|
|
ZK-5Q |
4.0-5.5 |
Ф500 |
150 |
25 |
1.2×0.5×1.9 |
|
|
ZK-1D2 |
0.5-1.4 |
Ф250 |
100 |
14 |
1.1×0.5×1.9 |
双头双罐,双罐一用一备。自动切换,不需用电磁阀。剩余水量、瞬时流量、再生剩余时间显示 |
|
ZK-2D2 |
1.6-2.2 |
Ф300 |
150 |
20 |
1.2×0.5×1.9 |
|
|
ZK-3D2 |
2.5-3.0 |
Ф350 |
200 |
30 |
1.3×0.5×1.9 |
|
|
ZK-4D2 |
3.2-4.5 |
Ф400 |
250 |
40 |
1.4×0.5×1.9 |
|
|
ZK-5D2 |
4.0-5.5 |
Ф500 |
300 |
50 |
1.4×0.5×1.9 |
|
|
ZK-3E2 |
4.0-6.0 |
Ф350 |
100 |
30 |
1.3×0.5×1.9 |
双罐同时运行,全数字信息显示 |
|
ZK-4E2 |
6.0-9.0 |
Ф400 |
250 |
40 |
1.4×0.5×1.9 |
|
|
ZK-5E2 |
8.0-11 |
Ф500 |
300 |
50 |
1.4×0.5×1.9 |
|
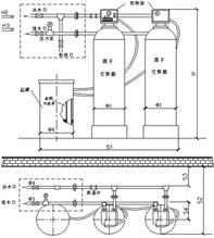
二、 |
ZK系列小流量软化水设备安装图 |


|
三、 |
ZK系列小流量软化水设备安装尺寸表(mm) |
|
型 号 |
Φ1 |
Φ2 |
Φ3 |
Φ4 |
H1 |
H2 |
H3 |
S1 |
S2 |
S3 |
S4 |
||
|
ZK-1T |
ZK-1Q |
ZK-1D2 |
250 |
460 |
Dg25 |
Dg25 |
1800 |
1515 |
1635 |
800 |
850 |
300 |
460 |
|
ZK-2T |
ZK-2Q |
ZK-2D2 |
300 |
460 |
Dg25 |
Dg25 |
1800 |
1515 |
1635 |
800 |
850 |
300 |
485 |
|
ZK-3T |
ZK-3Q |
ZK-3D2/E2 |
350 |
600 |
Dg25 |
Dg25 |
2000 |
1750 |
1870 |
1020 |
850 |
300 |
510 |
|
ZK-4T |
ZK-4Q |
ZK-4D2/E2 |
400 |
600 |
Dg25 |
Dg25 |
2000 |
1750 |
1870 |
1500 |
850 |
300 |
535 |
|
ZK-5T |
ZK-5Q |
ZK-5D2/E2 |
500 |
650 |
Dg25 |
Dg25 |
2000 |
1750 |
1870 |
1500 |
850 |
300 |
535 |
注:1.上图为双罐系统,单罐系统没有右侧交换罐,双罐系统没有电磁阀;
2.配用标准底座时,设备进出口均已安装好,相对位置没有明显改变;
3.建议进水口加装Y型过滤器或其他过滤器(由用户自购);
4.ZK-3E2、ZK-4E2、ZK-5E2系统的进出水管径均为DN40,当采用FLECK的集成阀及控制器时,双罐一用一备式系统的组成及外观与上述情况略有差异,其基本组成如下图所示,其主要特点是:顶装,FLECK的中型及小型系统均采用顶装安装方式。





